Пароль буде надіслано вам електронною поштою
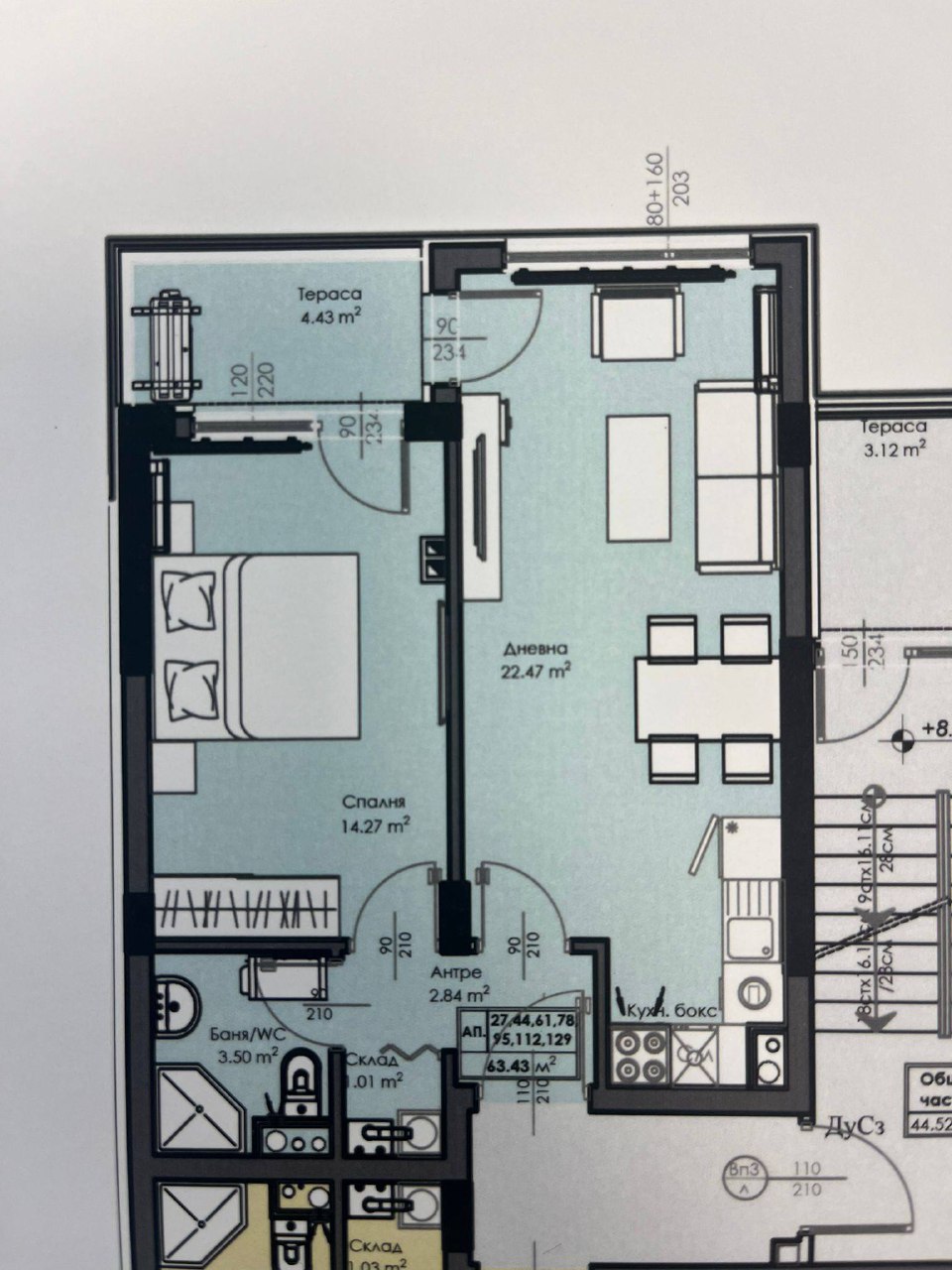
Пропонується двокімнатна квартира у вторинному фонді житлового комплексу Atlas 2, розташованого в місті Бургас. Апартамент розташований на 4 поверсі, має площу 62 квадратних метри і пропонується за ціною 94 000 євро. Квартира продається без меблів і без Акта 16, що важливо враховувати під час купівлі. Такса обслуговування становить 5 євро за квадратний метр, що є низьким показником для сучасних житлових комплексів і дозволяє значно знизити щорічні експлуатаційні витрати.
Квартира належить до типу двокімнатних - це зручний формат з окремою спальнею і вітальнею зоною, де може бути організовано кухню і місце для відпочинку. Площа 62 м² підходить для комфортного проживання однієї людини, пари або невеликої родини. Відсутність меблів робить простір вільним для планування і надає можливість покупцеві оформити інтер'єр повністю за своїми уподобаннями. Для багатьох це є перевагою, оскільки унеможливлює додаткові витрати на демонтаж старих елементів і дає змогу створити свій власний стиль.
Розташування на 4 поверсі робить квартиру зручною в повсякденному використанні. Цей рівень забезпечує комфортний підйом без надмірного навантаження, особливо якщо ліфт у будівлі ще не введено в експлуатацію. При цьому четвертий поверх залишається досить високо, щоб забезпечити тишу і відокремленість від вуличного шуму. Світло й огляд також стають комфортнішими порівняно з нижніми поверхами.
Комплекс Atlas 2 розташований у Бургасі - великому місті на болгарському узбережжі, де активно розвивається житлова і комерційна інфраструктура. Район відрізняється зручним розташуванням і доступністю магазинів, супермаркетів, зупинок транспорту, кафе та інших міських зручностей. Завдяки цьому об'єкт може бути використаний як для постійного проживання, так і для потенційної оренди в майбутньому. Райони Бургаса, що розвиваються, часто стають точками зростання, а купівля таких об'єктів на етапі відсутності Акта 16 може бути вигідною інвестицією в довгостроковій перспективі.
Такса обслуговування 5 євро за квадратний метр дає змогу розраховувати на низькі річні витрати. Для власників це означає, що утримання об'єкта не створить значного фінансового навантаження. Такі параметри особливо привабливі для покупців, які шукають квартиру для постійного проживання, або для інвесторів, орієнтованих на майбутню здачу в оренду.
Квартира без меблів дає широкі можливості з облаштування. Можна вибрати якісні матеріали, сучасний дизайн, раціонально розподілити зони і створити функціональний простір, що відповідає особистим потребам. Це особливо актуально для об'єктів у нових будинках, де сучасні інженерні системи дозволяють реалізовувати різні планувальні рішення.
Відсутність Акта 16 - характеристика поточного стану комплексу. Покупець повинен враховувати, що експлуатація об'єкта почнеться після завершення всіх процедур і видачі відповідного документа. Однак саме цей етап дає змогу придбати житло за ціною нижчою, ніж у повністю готових квартир. Після введення комплексу в експлуатацію вартість, як правило, зростає, що робить об'єкт привабливим для тих, хто розглядає покупку з розрахунком на зростання вартості.
Квартира в Atlas 2 підійде покупцям, яким важливе поєднання ціни, площі, зручної поверховості та низьких витрат на утримання. Це варіант для тих, хто шукає функціональний простір у Бургасі та готовий оформити його на свій смак. Формат двушки залишається найбільш затребуваним завдяки зручності планування, можливості комфортно організувати побутові зони і створити повноцінне житло для різних цілей.
Об'єкт привабливий і як інвестиція, враховуючи розвиток району, попит на житло в Бургасі та потенціал для подальшої оренди після повного завершення комплексу. Площа 62 м² забезпечує достатньо простору для зручного облаштування та раціонального використання площі.
Найкращі об'єкти йдуть за години. Підпишіться на Telegram - там з'являються пропозиції, які не потрапляють у відкритий доступ.
З Марією можна зв'язатися через телефон: +35988330839 мобільний: +380977554750 Будь ласка, використовуйте #%id, щоб ідентифікувати майно "Двокімнатна квартира з видом на море в житловому будинку - Сарафово, Бургас"
З Марією можна зв'язатися через телефон: +35988330839 мобільний: +380977554750 Будь ласка, використовуйте #%id, щоб ідентифікувати об'єкт нерухомості "Перша лінія біля моря - апартаменти з панорамним видом у Burgas Bay"
З Марією можна зв'язатися через телефон: +35988330839 мобільний: +380977554750 Будь ласка, використовуйте #%id для ідентифікації майна "Студія від забудовника в новому районі - Azimut Atlas 1, Бургас"
З Марією можна зв'язатися через телефон: +35988330839 мобільний: +380977554750 Будь ласка, використовуйте #%id, щоб ідентифікувати майно "Двокімнатна квартира в новому будинку - Бургас, квартал Хоризонт"
З Марією можна зв'язатися через телефон: +35988330839 мобільний: +380977554750 Будь ласка, використовуйте #%id для ідентифікації властивості "Трикімнатний апартамент із двома спальнями - Бургас, Panorama, район Меден рудник"
З Марією можна зв'язатися через телефон: +35988330839 мобільний: +380977554750 Будь ласка, використовуйте #%id, щоб ідентифікувати майно "Студія в новому житловому комплексі Atlas 3, Бургас"
Так, покупку можна оформити повністю онлайн. Ми готуємо всі документи, організуємо підписання договору та нотаріальне оформлення через довіреність. Після угоди ви отримуєте нотаріальний акт і стаєте власником.
Загальні витрати становлять близько 5-5,5 % від вартості об'єкта:
нотаріальні та реєстраційні такси,
місцевий податок під час купівлі,
послуги перекладу та юридичний супровід.
Так, у Болгарії іноземці можуть вільно купувати квартири, апартаменти та комерційні приміщення. Обмежень немає.
Так, багато забудовників пропонують розстрочку - від 6 місяців до 3 років. Умови залежать від стадії будівництва і конкретного проєкту.
Якщо об'єкт у комплексі - стягується щорічна такса обслуговування, яка покриває охорону, прибирання, догляд за територією і басейном. Розмір - від 8 до 15 €/м² на рік.
Так. Власники можуть здавати апартаменти самостійно або через керуючу компанію. Ми допомагаємо підібрати надійного партнера та налаштувати процес оренди.
Річний податок на нерухомість у Болгарії невисокий - річний податок. близько 0,15 % від кадастрової вартостіщо в середньому становить 50-150 € на рік.
Після оформлення ви отримуєте нотаріальний акт (свідоцтво про власність), кадастровий номер і документи, що підтверджують реєстрацію в реєстрі нерухомості.
Так, більшість комплексів і будинків у прибережних районах призначені для цілорічного проживання. Є магазини, аптеки, школи та громадський транспорт.
Для резервації достатньо оплатити депозит (зазвичай 2000-3000 €). Після цього об'єкт знімається з продажу й оформляється попередній договір.
Використовуйте форму нижче, щоб зв'язатися з нами!




*Пропозиція діє до 31 грудня
Ми - офіційний партнер забудовників.
Тому під час купівлі через наше агентство ви отримуєте спеціальну партнерську знижкунедоступну при прямому зверненні.
Що ви отримуєте:
ціну, нижчу за офіційну
пріоритетний вибір квартир ✔ пріоритетний вибір квартир
супровід угоди без комісії ✔ супровід угоди без комісії
все офіційно, за договором
Залиште контакти - ми підберемо варіанти з нашою партнерською знижкою саме під вас.
Гарячі пропозиції щодо нерухомості!
Тільки актуальні об'єкти та щоденні оновлення в нашому Telegram-каналі.
Встигніть першим забронювати найкращі варіанти!