Пароль будет отправлен вам по электронной почте

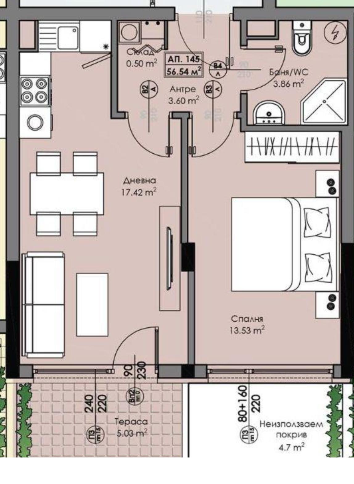
Предлагается к продаже апартамент с одной спальней в современном жилом комплексе Atlas, расположенном в городе Бургас. Квартира находится на 10-м этаже, апартамент №145. Общая площадь составляет 56 м². Стоимость объекта — 96 000 €, что соответствует цене 1 696 € за квадратный метр.
Апартамент включает гостиную с кухонной зоной и местом для отдыха, отдельную спальню, ванную комнату, коридор и балкон. Планировка выполнена с акцентом на функциональность и комфортное использование каждого метра площади. Несмотря на компактные размеры, квартира удобна для проживания одного человека или пары, а также может рассматриваться как инвестиция для последующей сдачи в аренду.
Жилой комплекс Atlas спроектирован с учётом современных стандартов строительства. Архитектура здания выполнена в современном стиле, применены качественные строительные материалы и инженерные решения. В комплексе предусмотрены благоустроенные общие зоны, озеленённая территория, парковочные места и контролируемый доступ.
Расположение комплекса отличается удобством и развитой инфраструктурой. Вблизи находятся магазины, супермаркеты, аптеки, школы, детские сады и остановки общественного транспорта. Локация обеспечивает быстрый доступ как к центру Бургаса, так и к приморской зоне города.
Апартамент на 10-м этаже сочетает удобство расположения и практичную планировку. Гостиная объединяет функции кухни и зоны отдыха, спальня обеспечивает приватность, а балкон расширяет жилое пространство и создаёт дополнительное место для отдыха на свежем воздухе.
Стоимость в размере 96 000 € делает данный объект доступным предложением для покупателей, которые ищут современное жильё в новом комплексе. Цена за квадратный метр — 1 696 € — подтверждает привлекательность апартамента для долгосрочной перспективы и инвестиционных целей.
Характеристики объекта:
• Комплекс Atlas, город Бургас
• Апартамент №145
• Этаж: 10-й
• Площадь: 56 м²
• Спальни: 1
• Цена: 96 000 €
• Цена за м²: 1 696 €
Лучшие объекты уходят за часы. Подпишитесь на Telegram — там появляются предложения, которые не попадают в открытый доступ.
You can contact Мария via phone: +35988330839 mobile: +380977554750 Please use the #%id to identify the property "Трёхкомнатная квартира в комплексе New Line Village, Солнечный Берег"
You can contact Мария via phone: +35988330839 mobile: +380977554750 Please use the #%id to identify the property "Двухкомнатная квартира с новой мебелью в комплексе Arkite, Кошарица"
You can contact Мария via phone: +35988330839 mobile: +380977554750 Please use the #%id to identify the property "Двухкомнатная квартира с удобной планировкой в комплексе Morski Far, Святой Влас"
You can contact Мария via phone: +35988330839 mobile: +380977554750 Please use the #%id to identify the property "Трёхкомнатная квартира с двумя спальнями и видом на море — Rutland Bay, Равда"
You can contact Мария via phone: +35988330839 mobile: +380977554750 Please use the #%id to identify the property "Трёхкомнатная квартира с двумя спальнями и видом на море — Emerald Resort, Равда"
You can contact Мария via phone: +35988330839 mobile: +380977554750 Please use the #%id to identify the property "Трёхкомнатная квартира с видом на бассейн в комплексе Magic Dreams, Святой Влас"
Да, покупку можно оформить полностью онлайн. Мы готовим все документы, организуем подписание договора и нотариальное оформление через доверенность. После сделки вы получаете нотариальный акт и становитесь собственником.
Общие расходы составляют около 5–5,5 % от стоимости объекта:
нотариальные и регистрационные таксы,
местный налог при покупке,
услуги перевода и юридическое сопровождение.
Да, в Болгарии иностранцы могут свободно приобретать квартиры, апартаменты и коммерческие помещения. Ограничений нет.
Да, многие застройщики предлагают рассрочку — от 6 месяцев до 3 лет. Условия зависят от стадии строительства и конкретного проекта.
Если объект в комплексе — взимается ежегодная такса обслуживания, которая покрывает охрану, уборку, уход за территорией и бассейном. Размер — от 8 до 15 €/м² в год.
Да. Владельцы могут сдавать апартаменты самостоятельно или через управляющую компанию. Мы помогаем подобрать надёжного партнёра и настроить процесс аренды.
Годовой налог на недвижимость в Болгарии невысокий — около 0,15 % от кадастровой стоимости, что в среднем составляет 50–150 € в год.
После оформления вы получаете нотариальный акт (свидетельство о собственности), кадастровый номер и документы, подтверждающие регистрацию в реестре недвижимости.
Да, большинство комплексов и домов в прибрежных районах предназначены для круглогодичного проживания. Есть магазины, аптеки, школы и общественный транспорт.
Для резервации достаточно оплатить депозит (обычно 2000–3000 €). После этого объект снимается с продажи и оформляется предварительный договор.
Используйте форму ниже, чтобы связаться с нами!











Горячие предложения по недвижимости!
Только актуальные объекты и ежедневные обновления в нашем Telegram-канале.
Успейте первым забронировать лучшие варианты!
Ищете идеальную недвижимость в Болгарии, но не нашли то, что нужно? Мы готовы помочь вам!
💬 Напишите нам в Telegram, и наш менеджер подберет для вас лучшие варианты