Пароль будет отправлен вам по электронной почте
Апартамент №101 в комплексе «Азимут», Бургас
Предлагается к продаже современный двухспальный апартамент в новом проекте «Азимут», расположенном в перспективном районе города Бургас. Комплекс отличается масштабностью, высоким качеством строительства и продуманной инфраструктурой, которая создаёт атмосферу «город в городе».
Характеристики апартамента:
• Номер: 101
• Этаж: 10
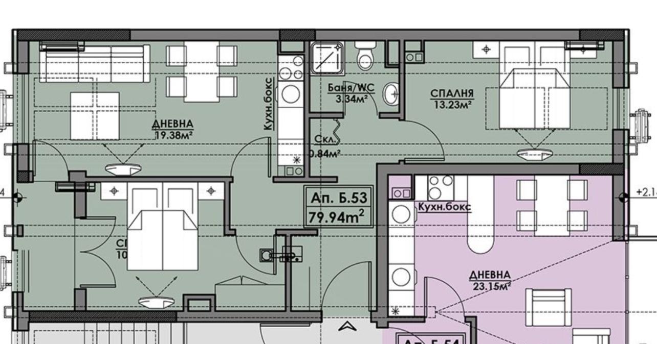
• Общая площадь: 79 м²
• Планировка: светлая гостиная с кухонной зоной, две отдельные спальни, ванная комната, коридор и балкон
• Вид: открытая панорама на город и зелёные зоны
• Цена: 139 895 €
• Цена за м²: 1 750 €
Преимущества комплекса «Азимут»:
• Современный проект с архитектурой нового поколения
• Более 228 000 м² общей площади, включая жилые и общественные зоны
• Ухоженные зелёные территории и прогулочные аллеи
• Бассейны, спортивные площадки, теннисные корты и фитнес
• Детские зоны: площадки, центр, детский сад
• Медицинский и оздоровительный центр
• Магазины, рестораны и кафе на территории
• Контролируемый доступ, охрана, видеонаблюдение
• Подземные и наземные парковки на более чем 1900 мест
Локация:
Комплекс расположен в быстроразвивающемся районе Бургаса, с удобным доступом ко всей городской инфраструктуре. В шаговой доступности — магазины, аптеки, транспортные остановки. Район отличается спокойной атмосферой и высоким инвестиционным потенциалом.
Лучшие объекты уходят за часы. Подпишитесь на Telegram — там появляются предложения, которые не попадают в открытый доступ.
You can contact Мария via phone: +35988330839 mobile: +380977554750 Please use the #%id to identify the property "Двухкомнатная квартира в комплексе Mercury 1, Солнечный Берег"
You can contact Мария via phone: +35988330839 mobile: +380977554750 Please use the #%id to identify the property "Двухкомнатная квартира с видом на море в комплексе Macon, Святой Влас"
You can contact Мария via phone: +35988330839 mobile: +380977554750 Please use the #%id to identify the property "Студия с панорамным видом на море — Варна, район Чайка"
You can contact Мария via phone: +35988330839 mobile: +380977554750 Please use the #%id to identify the property "Отдельно стоящий дом в Кошарице — спокойная жизнь рядом со школой и природой"
You can contact Мария via phone: +35988330839 mobile: +380977554750 Please use the #%id to identify the property "Трёхкомнатная квартира с двумя спальнями в комплексе Sea Breeze, Святой Влас"
You can contact Мария via phone: +35988330839 mobile: +380977554750 Please use the #%id to identify the property "Трёхкомнатная квартира с двумя спальнями в комплексе Horizont, Святой Влас"
Да, покупку можно оформить полностью онлайн. Мы готовим все документы, организуем подписание договора и нотариальное оформление через доверенность. После сделки вы получаете нотариальный акт и становитесь собственником.
Общие расходы составляют около 5–5,5 % от стоимости объекта:
нотариальные и регистрационные таксы,
местный налог при покупке,
услуги перевода и юридическое сопровождение.
Да, в Болгарии иностранцы могут свободно приобретать квартиры, апартаменты и коммерческие помещения. Ограничений нет.
Да, многие застройщики предлагают рассрочку — от 6 месяцев до 3 лет. Условия зависят от стадии строительства и конкретного проекта.
Если объект в комплексе — взимается ежегодная такса обслуживания, которая покрывает охрану, уборку, уход за территорией и бассейном. Размер — от 8 до 15 €/м² в год.
Да. Владельцы могут сдавать апартаменты самостоятельно или через управляющую компанию. Мы помогаем подобрать надёжного партнёра и настроить процесс аренды.
Годовой налог на недвижимость в Болгарии невысокий — около 0,15 % от кадастровой стоимости, что в среднем составляет 50–150 € в год.
После оформления вы получаете нотариальный акт (свидетельство о собственности), кадастровый номер и документы, подтверждающие регистрацию в реестре недвижимости.
Да, большинство комплексов и домов в прибрежных районах предназначены для круглогодичного проживания. Есть магазины, аптеки, школы и общественный транспорт.
Для резервации достаточно оплатить депозит (обычно 2000–3000 €). После этого объект снимается с продажи и оформляется предварительный договор.
Используйте форму ниже, чтобы связаться с нами!










*Предложение действует до 31 декабря
Мы — официальный партнёр застройщиков.
Поэтому при покупке через наше агентство вы получаете специальную партнёрскую скидку, недоступную при прямом обращении.
Что вы получаете:
✔ цену ниже официальной
✔ приоритетный выбор квартир
✔ сопровождение сделки без комиссии
✔ всё официально, по договору
Оставьте контакты — мы подберём варианты с нашей партнёрской скидкой именно под вас.
Горячие предложения по недвижимости!
Только актуальные объекты и ежедневные обновления в нашем Telegram-канале.
Успейте первым забронировать лучшие варианты!