Продаётся просторный дом в Поморие с живописным видом на море. Идеально подходит для постоянного проживания, отдыха или инвестиции. Уютный район с доступом к городской инфраструктуре и побережью делает покупку особенно привлекательной.
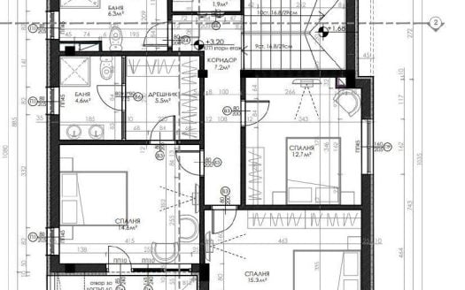
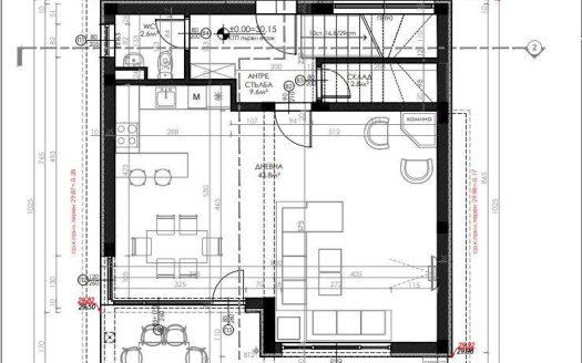
Двухэтажный дом площадью 196 м² предлагает комфортное пространство для семьи. Планировка включает гостиную с кухней, три спальни и два санузла. На каждом этаже есть террасы с видом на море, создающие атмосферу уюта. Дом продаётся на этапе «на тапа» (под отделку), что позволяет выбрать материалы и стиль интерьера. Первый этаж – общая зона, второй – приватная.
Дом находится в спокойном районе Поморие с развитой инфраструктурой. Умеренные расходы на содержание недвижимости делают её выгодной для владельцев. Вблизи расположены магазины, школы и медицинские учреждения, а также объекты социальной и транспортной инфраструктуры.
Поморие – популярный город на побережье Черного моря с удобным транспортным сообщением. Минимальное расстояние до моря делает покупку недвижимости особенно привлекательной. Город предлагает все необходимые удобства для круглогодичного проживания.
Покупка дома в Поморие – выгодное вложение благодаря высокому спросу на недвижимость у моря. Объект подходит как для проживания, так и для сдачи в аренду, обеспечивая стабильный доход. Возможность завершить ремонт по собственному проекту увеличивает ликвидность дома.
Лучшие объекты уходят за часы. Подпишитесь на Telegram — там появляются предложения, которые не попадают в открытый доступ.
You can contact Мария via phone: +35988330839 mobile: +380977554750 Please use the #%id to identify the property "Дом с видом на море в Поморие ID: 87347"
You can contact Мария via phone: +35988330839 mobile: +380977554750 Please use the #%id to identify the property "Дом с 4 спальнями в Victoria Hill ID: 80435"
You can contact Мария via phone: +35988330839 mobile: +380977554750 Please use the #%id to identify the property "Victoria Royal Park, Поморие — современные дома для жизни и инвестиций ID: 80281"
You can contact Мария via phone: +35988330839 mobile: +380977554750 Please use the #%id to identify the property "Victoria Casa в Поморие ID: 79765"
You can contact Мария via phone: +35988330839 mobile: +380977554750 Please use the #%id to identify the property "Трёхкомнатная квартира в Marina Holiday, Поморие ID: 79272"
You can contact Мария via phone: +35988330839 mobile: +380977554750 Please use the #%id to identify the property "Поморие, Majestic 47 — двухэтажный дом с тремя спальнями и собственным двориком"
Да, покупку можно оформить полностью онлайн. Мы готовим все документы, организуем подписание договора и нотариальное оформление через доверенность. После сделки вы получаете нотариальный акт и становитесь собственником.
Общие расходы составляют около 5–5,5 % от стоимости объекта:
нотариальные и регистрационные таксы,
местный налог при покупке,
услуги перевода и юридическое сопровождение.
Да, в Болгарии иностранцы могут свободно приобретать квартиры, апартаменты и коммерческие помещения. Ограничений нет.
Да, многие застройщики предлагают рассрочку — от 6 месяцев до 3 лет. Условия зависят от стадии строительства и конкретного проекта.
Если объект в комплексе — взимается ежегодная такса обслуживания, которая покрывает охрану, уборку, уход за территорией и бассейном. Размер — от 8 до 15 €/м² в год.
Да. Владельцы могут сдавать апартаменты самостоятельно или через управляющую компанию. Мы помогаем подобрать надёжного партнёра и настроить процесс аренды.
Годовой налог на недвижимость в Болгарии невысокий — около 0,15 % от кадастровой стоимости, что в среднем составляет 50–150 € в год.
После оформления вы получаете нотариальный акт (свидетельство о собственности), кадастровый номер и документы, подтверждающие регистрацию в реестре недвижимости.
Да, большинство комплексов и домов в прибрежных районах предназначены для круглогодичного проживания. Есть магазины, аптеки, школы и общественный транспорт.
Для резервации достаточно оплатить депозит (обычно 2000–3000 €). После этого объект снимается с продажи и оформляется предварительный договор.
Используйте форму ниже, чтобы связаться с нами!
















Горячие предложения по недвижимости!
Только актуальные объекты и ежедневные обновления в нашем Telegram-канале.
Успейте первым забронировать лучшие варианты!