A password will be e-mailed to you
Just 5% when signing the contract - and you can immediately use the apartment by the sea
Предлагается к продаже трёхкомнатный апартамент в новом жилом доме в Равде — спокойной, обжитой локации, подходящей как для постоянного проживания, так и для отдыха или аренды. Район без курортного шума, с нормальной инфраструктурой и удобным доступом к морю.
Дом расположен всего в 12 минутах пешком от пляжа, в зоне с уже сложившейся жилой застройкой. Это не стройка «в чистом поле», а полноценная городская среда: рядом магазины, аптеки, остановки, всё необходимое для жизни круглый год.
About the complex
Здание малоквартирное, современное, с качественным фасадом и аккуратными общими частями.
Дом с Акт 16, без таксы поддержки — важный момент для тех, кто считает расходы на содержание, а не только цену покупки.
В комплексе представлены двух- и трёхкомнатные апартаменты, часть квартир на первом этаже с увеличенными террасами. Все апартаменты проектировались с упором на функциональность, а не «квадратные метры ради цифры».
Конкретное предложение
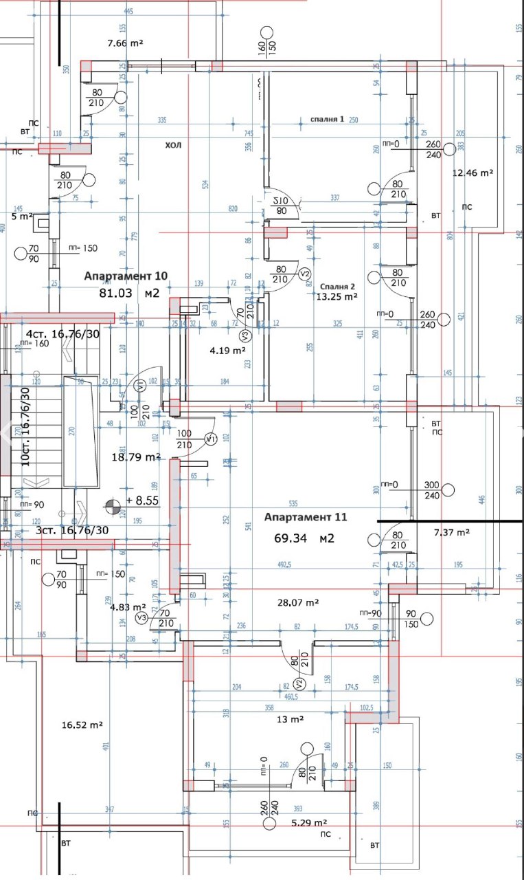
Апартамент №10 — трёхкомнатная квартира с двумя отдельными спальнями.
Параметры:
- Floor: 4
• Общая площадь: 90 м²
• Планировка:
• две полноценные спальни
• гостиная с обеденной зоной и кухонным боксом
• хозяйственное помещение
• санузел
- terrace
Формат квартиры удобен для семьи, а также востребован для долгосрочной аренды. Комнаты правильной формы, без бесполезных коридоров и «съеденных» метров.
Состояние и отделка
Апартамент предлагается:
• в базовой комплектации
• или с доведением «до ключ» — по желанию покупателя
Стоимость доведения «до ключ» включает полностью готовый санузел, напольные покрытия, стены, межкомнатные двери, розетки и выключатели. Без сюрпризов и «доплат по ходу».
Price
• Цена апартамента: 104 581 €
• Цена с доведением «до ключ»: 113 675 €
Who's good for
Этот вариант подойдёт тем, кто:
• ищет квартиру у моря без таксы поддержки
• планирует жить круглый год, а не только летом
• хочет нормальную планировку, а не «курортную студию»
• рассматривает ликвидный объект для аренды или перепродажи
Это не пафосный курортный комплекс и не эконом «для галочки». Это понятный, честный жилой дом с нормальной ценой и реальными характеристиками.
The best objects go away in hours. Subscribe to Telegram - offers that are not publicly available appear there.
You can contact Maria via phone: +35988330839 mobile: +380977554750 Please use the #%id to identify the property "One bedroom apartment by the sea in Ravda - ready house, ACT 16".
You can contact Maria via phone: +35988330839 mobile: +380977554750 Please use the #%id to identify the property "ravda village - modern houses by the sea for living and investment".
You can contact Maria via phone: +35988330839 mobile: +380977554750 Please use the #%id to identify the property "Eres Residence - modern house by the sea without service tax in the center of resort life"
You can contact Maria via phone: +35988330839 mobile: +380977554750 Please use the #%id to identify the property "Two bedroom apartment with possibility of redevelopment into three bedrooms - Tili, Ravda".
You can contact Maria via phone: +35988330839 mobile: +380977554750 Please use the #%id to identify the property "one bedroom apartment with pool view - Ravda, Fort Noks Riviera".
Yes, the purchase can be completed completely online. We prepare all the documents, organize the signing of the contract and notarization through a power of attorney. After the transaction, you receive a notarized deed and become the owner.
Total costs are approx. 5-5.5 % of the value of the property:
notary and registration fees,
local purchase tax,
translation services and legal support.
Yes, foreigners can freely purchase apartments, apartments and commercial premises in Bulgaria. There are no restrictions.
Yes, many developers offer installments - from 6 months to 3 years. The terms depend on the stage of construction and the specific project.
If the facility is in a complex - an annual maintenance fee is charged, which covers security, cleaning, grounds and pool maintenance. The amount is. 8 to 15 €/m² per year.
Yes. Owners can rent the apartments themselves or through a management company. We help to find a reliable partner and customize the rental process.
The annual real estate tax in Bulgaria is low - about 0.15 % of cadastral valuewhich is an average of 50-150 € per year.
After registration you receive a notarial deed (certificate of ownership), cadastral number and documents confirming registration in the real estate registry.
Yes, most complexes and houses in coastal areas are designed for year-round living. There are stores, pharmacies, schools and public transportation.
All you need to do to make a reservation is to pay deposit (usually 2000-3000 €). The object is then withdrawn from the sale and a preliminary contract is executed.
Use the form below to contact us!



*The offer is valid until December 31
We are. official partner of developers.
Therefore, when purchasing through our agency you get special partner discountthat is not available through direct access.
What you get:
✔ lower than the official price
✔ Priority selection of apartments
✔ transaction support without commission
✔ everything is official, under contract.
Leave your contacts and we'll find options with our partner discount just for you.
Hot real estate deals!
Only actual objects and daily updates in our Telegram channel.
Be the first to book the best options!