Пароль буде надіслано вам електронною поштою
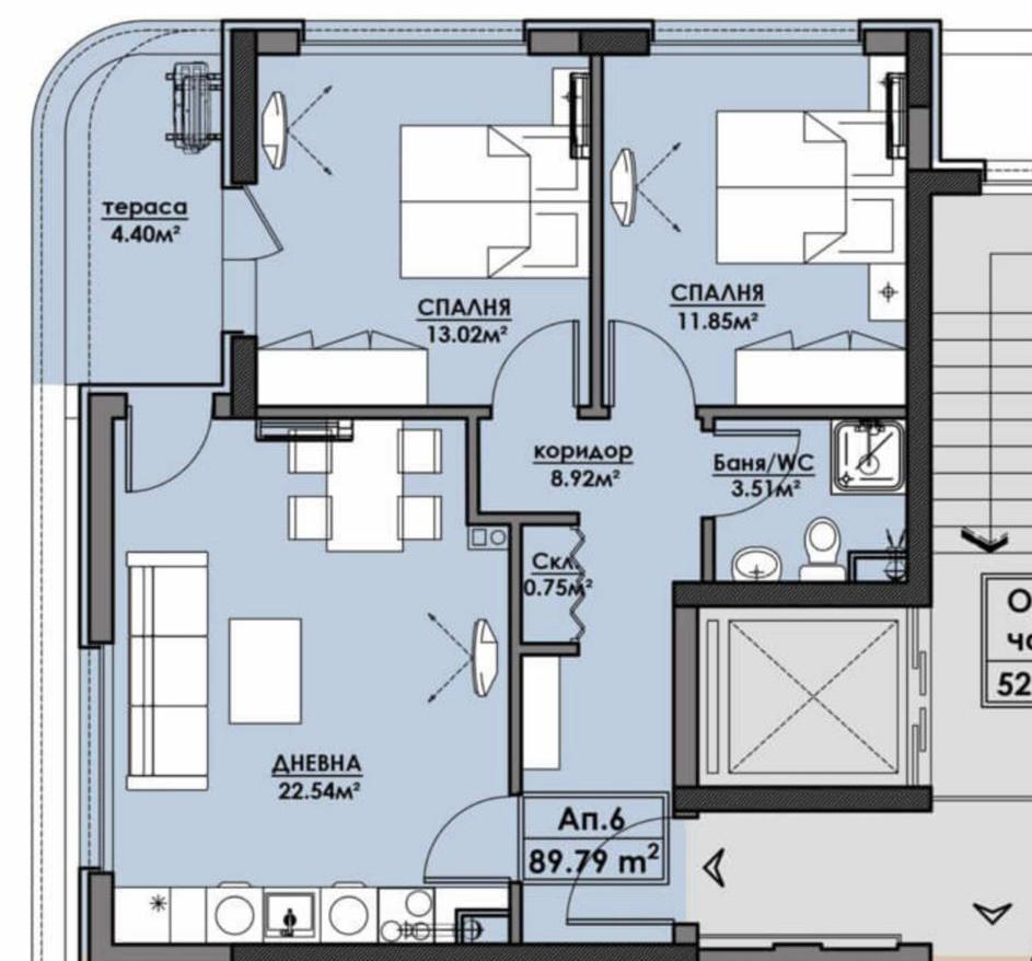
Площа апартаменту - 87 м², розташований на 8 (передостанньому) поверсі.
Ціна - 133 900 євро.
Сучасне житло нового рівня
Трикімнатний апартамент включає простору вітальню з кухонною зоною, дві окремі спальні, ванну кімнату і балкон.
Раціональне планування створює відчуття простору і затишку, а великі вікна наповнюють приміщення природним світлом.
Преміальні матеріали та технології будівництва:
- Тришарові вікна Rehau
- Вхідні двері Hormann
- Керамічна цегла Wienerberger
- Високий клас енергоефективності та шумоізоляції
Інфраструктура комплексу вражає:
- Wellness-зона та фітнес
- Торгова вулиця та ресторани
- Бібліотека та амфітеатр
- Футбольне поле і тенісні корти
- Дитячий клуб і майданчики для собак
- Ветеринарна клініка та медичний центр
- Центр краси, хімчистка, аптека
- Скай-бар, гіпермаркет, банківське відділення
- Підземні парковки та офісні приміщення
Розташування:
Комплекс розташований у районі Мадіка, одному з найперспективніших у Бургасі.
Усе необхідне - поруч:
- Центр міста і Морський парк - 10 хвилин на машині
- Аеропорт Бургас - 10 км
- Торгові центри - 2 км
- Супермаркет METRO - 5 хвилин пішки
Завершення будівництва блоку А1 - кінець 2027 року.
Найкращі об'єкти йдуть за години. Підпишіться на Telegram - там з'являються пропозиції, які не потрапляють у відкритий доступ.
З Марією можна зв'язатися через телефон: +35988330839 мобільний: +380977554750 Будь ласка, використовуйте #%id, щоб ідентифікувати майно "Двокімнатна квартира з видом на море в житловому будинку - Сарафово, Бургас"
З Марією можна зв'язатися через телефон: +35988330839 мобільний: +380977554750 Будь ласка, використовуйте #%id, щоб ідентифікувати об'єкт нерухомості "Перша лінія біля моря - апартаменти з панорамним видом у Burgas Bay"
З Марією можна зв'язатися через телефон: +35988330839 мобільний: +380977554750 Будь ласка, використовуйте #%id для ідентифікації майна "Студія від забудовника в новому районі - Azimut Atlas 1, Бургас"
З Марією можна зв'язатися через телефон: +35988330839 мобільний: +380977554750 Будь ласка, використовуйте #%id, щоб ідентифікувати майно "Двокімнатна квартира в новому будинку - Бургас, квартал Хоризонт"
З Марією можна зв'язатися через телефон: +35988330839 мобільний: +380977554750 Будь ласка, використовуйте #%id для ідентифікації властивості "Трикімнатний апартамент із двома спальнями - Бургас, Panorama, район Меден рудник"
З Марією можна зв'язатися через телефон: +35988330839 мобільний: +380977554750 Будь ласка, використовуйте #%id, щоб ідентифікувати майно "Студія в новому житловому комплексі Atlas 3, Бургас"
Так, покупку можна оформити повністю онлайн. Ми готуємо всі документи, організуємо підписання договору та нотаріальне оформлення через довіреність. Після угоди ви отримуєте нотаріальний акт і стаєте власником.
Загальні витрати становлять близько 5-5,5 % від вартості об'єкта:
нотаріальні та реєстраційні такси,
місцевий податок під час купівлі,
послуги перекладу та юридичний супровід.
Так, у Болгарії іноземці можуть вільно купувати квартири, апартаменти та комерційні приміщення. Обмежень немає.
Так, багато забудовників пропонують розстрочку - від 6 місяців до 3 років. Умови залежать від стадії будівництва і конкретного проєкту.
Якщо об'єкт у комплексі - стягується щорічна такса обслуговування, яка покриває охорону, прибирання, догляд за територією і басейном. Розмір - від 8 до 15 €/м² на рік.
Так. Власники можуть здавати апартаменти самостійно або через керуючу компанію. Ми допомагаємо підібрати надійного партнера та налаштувати процес оренди.
Річний податок на нерухомість у Болгарії невисокий - річний податок. близько 0,15 % від кадастрової вартостіщо в середньому становить 50-150 € на рік.
Після оформлення ви отримуєте нотаріальний акт (свідоцтво про власність), кадастровий номер і документи, що підтверджують реєстрацію в реєстрі нерухомості.
Так, більшість комплексів і будинків у прибережних районах призначені для цілорічного проживання. Є магазини, аптеки, школи та громадський транспорт.
Для резервації достатньо оплатити депозит (зазвичай 2000-3000 €). Після цього об'єкт знімається з продажу й оформляється попередній договір.
Використовуйте форму нижче, щоб зв'язатися з нами!








*Пропозиція діє до 31 грудня
Ми - офіційний партнер забудовників.
Тому під час купівлі через наше агентство ви отримуєте спеціальну партнерську знижкунедоступну при прямому зверненні.
Що ви отримуєте:
ціну, нижчу за офіційну
пріоритетний вибір квартир ✔ пріоритетний вибір квартир
супровід угоди без комісії ✔ супровід угоди без комісії
все офіційно, за договором
Залиште контакти - ми підберемо варіанти з нашою партнерською знижкою саме під вас.
Гарячі пропозиції щодо нерухомості!
Тільки актуальні об'єкти та щоденні оновлення в нашому Telegram-каналі.
Встигніть першим забронювати найкращі варіанти!