Пропонується до продажу двокімнатний апартамент у новому житловому проєкті Villa Margarita у Святому Власі. Це варіант для тих, хто шукає спокійне місце для життя або відпочинку біля моря, без курортної метушні, з мінімальними щорічними витратами і перспективою зростання вартості після введення будівлі в експлуатацію.
Апартамент розташований на партерному поверсі та має власний двір, що робить його особливо зручним для проживання. Формат із подвір'ям рідко зустрічається в новобудовах Святого Власа і цінується як сім'ями з дітьми, так і покупцями, що прагнуть максимум приватності та відчуття дому, а не класичної квартири.
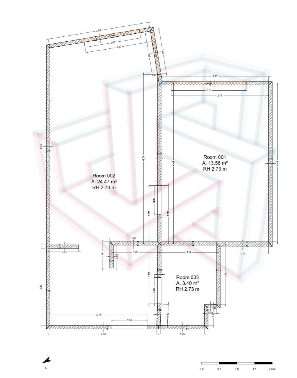
Загальна площа апартаменту - 58 м² плюс власний двір. Планування класичне і практичне: вітальня з кухонною зоною, окрема спальня і санвузол. Квартира продається без меблів, що дає можливість новому власнику оформити інтер'єр повністю під себе - вибрати стиль, матеріали та наповнення без необхідності переплачувати за чужий ремонт.
З апартаментів відкривається вид на море. До пляжу близько 800 метрів - комфортна дистанція, яка дає змогу бути поруч із морем, але водночас жити в більш тихій і спокійній частині Святого Власа. Район підходить як для сезонного відпочинку, так і для постійного проживання.
Будівля перебуває на етапі будівництва, Акт 14 уже отримано. Це означає, що основні будівельні роботи завершено, а об'єкт перебуває на фінальній стадії реалізації. Купівля на цьому етапі часто розглядається як інвестиційно вигідна, оскільки ціна, як правило, нижча, ніж після отримання Акта 16.
Окрема перевага - відсутність такси підтримки. Це рідкість для об'єктів у Святому Власі та серйозний плюс із погляду довгострокових витрат. Немає щорічних платежів за обслуговування комплексу, що робить утримання нерухомості більш економічним і привабливим для життя цілий рік.
Апартамент підходить:
- для власного проживання біля моря;
- для літнього відпочинку з можливістю використовувати двір як зону відпочинку;
- як інвестиція з потенціалом зростання після завершення будівництва;
- для оренди в сезон, особливо затребуваний формат із двориком і видом на море.
Ціна об'єкта - 59 900 євро. Для Святого Власа це одна з найдоступніших пропозицій у новобудові, без такси підтримки, з видом на море і власним подвір'ям.
Villa Margarita, Святий Влас
Найкращі об'єкти йдуть за години. Підпишіться на Telegram - там з'являються пропозиції, які не потрапляють у відкритий доступ.
З Марією можна зв'язатися через телефон: +35988330839 мобільний: +380977554750 Будь ласка, використовуйте #%id для ідентифікації властивості "Двокімнатна квартира біля басейну в Emperium, Святий Влас ID: 80342"
З Марією можна зв'язатися через телефон: +35988330839 мобільний: +380977554750 Будь ласка, використовуйте #%id для ідентифікації об'єкта нерухомості "Двокімнатна квартира біля моря у Святому Власі ID: 80328"
З Марією можна зв'язатися через телефон: +35988330839 мобільний: +380977554750 Будь ласка, використовуйте #%id для ідентифікації об'єкта нерухомості "Вілли біля моря у Святому Власі - Mareá Blu ID: 80264"
З Марією можна зв'язатися через телефон: +35988330839 мобільний: +380977554750 Будь ласка, використовуйте #%id для ідентифікації властивості "Трикімнатна квартира в Phoenix, Святий Влас ID: 80234"
З Марією можна зв'язатися через телефон: +35988330839 мобільний: +380977554750 Будь ласка, використовуйте #%id для ідентифікації властивості "Студія 300 м від моря, Святий Влас ID: 80157"
З Марією можна зв'язатися через телефон: +35988330839 мобільний: +380977554750 Будь ласка, використовуйте #%id для ідентифікації об'єкта нерухомості "Квартира біля моря в Русалці, Святий Влас ID: 80078"
Так, покупку можна оформити повністю онлайн. Ми готуємо всі документи, організуємо підписання договору та нотаріальне оформлення через довіреність. Після угоди ви отримуєте нотаріальний акт і стаєте власником.
Загальні витрати становлять близько 5-5,5 % від вартості об'єкта:
нотаріальні та реєстраційні такси,
місцевий податок під час купівлі,
послуги перекладу та юридичний супровід.
Так, у Болгарії іноземці можуть вільно купувати квартири, апартаменти та комерційні приміщення. Обмежень немає.
Так, багато забудовників пропонують розстрочку - від 6 місяців до 3 років. Умови залежать від стадії будівництва і конкретного проєкту.
Якщо об'єкт у комплексі - стягується щорічна такса обслуговування, яка покриває охорону, прибирання, догляд за територією і басейном. Розмір - від 8 до 15 €/м² на рік.
Так. Власники можуть здавати апартаменти самостійно або через керуючу компанію. Ми допомагаємо підібрати надійного партнера та налаштувати процес оренди.
Річний податок на нерухомість у Болгарії невисокий - річний податок. близько 0,15 % від кадастрової вартостіщо в середньому становить 50-150 € на рік.
Після оформлення ви отримуєте нотаріальний акт (свідоцтво про власність), кадастровий номер і документи, що підтверджують реєстрацію в реєстрі нерухомості.
Так, більшість комплексів і будинків у прибережних районах призначені для цілорічного проживання. Є магазини, аптеки, школи та громадський транспорт.
Для резервації достатньо оплатити депозит (зазвичай 2000-3000 €). Після цього об'єкт знімається з продажу й оформляється попередній договір.
Використовуйте форму нижче, щоб зв'язатися з нами!














Гарячі пропозиції щодо нерухомості!
Тільки актуальні об'єкти та щоденні оновлення в нашому Telegram-каналі.
Встигніть першим забронювати найкращі варіанти!