Пароль будет отправлен вам по электронной почте
Предлагается к продаже просторный апартамент с одной спальней в современном жилом комплексе «Азимут», расположенном в одном из самых благоустроенных районов города Бургас. Это предложение сочетает комфорт городской жизни, близость к морю и надёжное качество строительства.
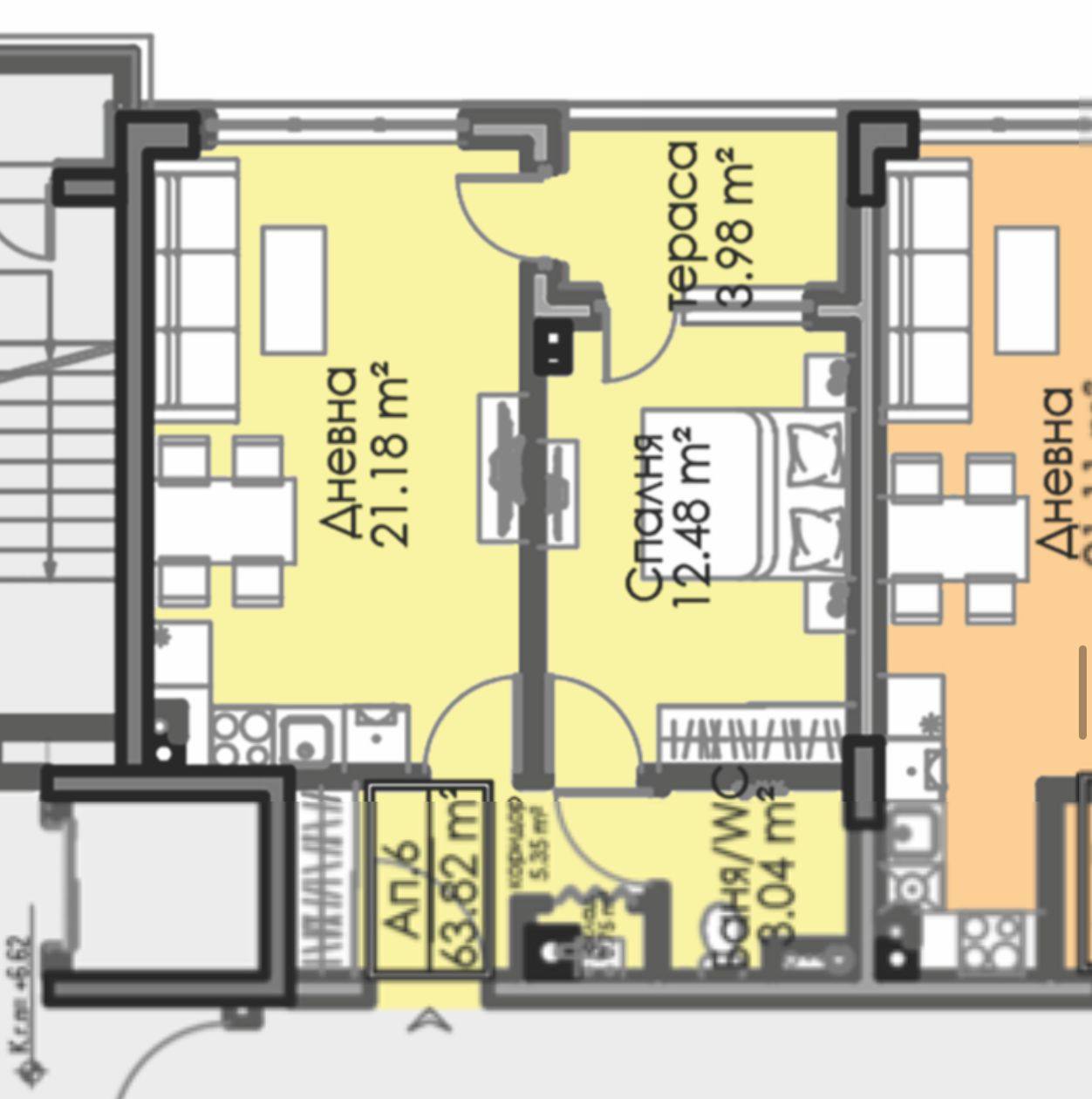
Квартира находится в четвёртом блоке комплекса, на одиннадцатом этаже здания. Общая площадь апартамента составляет 63 м², что позволяет разместить всё необходимое для постоянного проживания или отдыха у моря. Из окон открывается приятный вид, а высокий этаж обеспечивает хорошее естественное освещение и уединённость.
⸻
Простор и современный комфорт
Планировка апартамента продумана до мелочей: просторная гостиная с зоной кухни, уютная спальня, ванная комната и балкон. Пространство организовано рационально — каждая зона удобна и функциональна. Большие окна наполняют помещения светом, создавая ощущение уюта и тепла.
Такой формат идеально подойдёт как для жизни в Болгарии круглый год, так и для сезонного отдыха. Квартира будет комфортна для пары, семьи или как инвестиция под сдачу в аренду.
⸻
Умеренная такса и качественное строительство
Жилой комплекс «Азимут» выгодно выделяется сочетанием высокого уровня строительства и низкой стоимости обслуживания. Такса составляет всего 5 евро за квадратный метр в год, что делает содержание недвижимости доступным даже при круглогодичном проживании.
Здание возведено с применением современных технологий и материалов, обеспечивающих хорошую теплоизоляцию и долговечность. Ухоженная территория, аккуратные общие зоны и продуманная организация пространства создают комфортную атмосферу для жильцов.
⸻
Район с развитой инфраструктурой
Бургас — город, который успешно сочетает морской климат, европейский уровень сервиса и динамичное развитие. Район, где расположен комплекс «Азимут», отличает удобная транспортная доступность и близость ко всей городской инфраструктуре.
Рядом находятся магазины, аптеки, остановки общественного транспорта, кафе и супермаркеты. До центра Бургаса, морского парка и пляжа можно добраться всего за несколько минут. Это делает квартиру привлекательной не только для личного проживания, но и для инвестиций — спрос на аренду здесь стабильно высокий.
⸻
Привлекательная инвестиция в будущее
Стоимость апартамента — 102 112 евро. Учитывая площадь 63 м², высокий этаж и удачное расположение, это отличная возможность приобрести современное жильё в одном из самых перспективных городов на болгарском побережье.
Покупка квартиры в комплексе «Азимут» — это надёжное решение для тех, кто ценит качество, комфорт и стабильность. Объекты в Бургасе растут в цене, а квартиры в современных жилых домах пользуются постоянным спросом. Такой апартамент станет выгодной инвестицией и комфортным местом для жизни у моря.
Лучшие объекты уходят за часы. Подпишитесь на Telegram — там появляются предложения, которые не попадают в открытый доступ.
You can contact Мария via phone: +35988330839 mobile: +380977554750 Please use the #%id to identify the property "Действующий ресторант в комплексе Перла, Бургас — прибыльный готовый бизнес"
You can contact Мария via phone: +35988330839 mobile: +380977554750 Please use the #%id to identify the property "Частная сауна бизнес-класса в комплексе Перла, район Зорница, Бургас — полностью оборудованный и действующий спа-бизнес Fundeus Relax & Spa"
You can contact Мария via phone: +35988330839 mobile: +380977554750 Please use the #%id to identify the property "Управляющая компания жилого комплекса бизнес-класса, район Зорница — комплекс Перла, Бургас"
You can contact Мария via phone: +35988330839 mobile: +380977554750 Please use the #%id to identify the property "Просторная трёхкомнатная квартира с кладовкой в жилом здании, Блок 5 — вход 2, Бургас"
You can contact Мария via phone: +35988330839 mobile: +380977554750 Please use the #%id to identify the property "Готовый фитнес-бизнес в престижном районе Бургаса — Fundeus Gym, комплекс «Перла», Зорница"
You can contact Мария via phone: +35988330839 mobile: +380977554750 Please use the #%id to identify the property "Просторная трёхкомнатная квартира (две спальни) в комплексе Aria 2, Бургас"
Да, покупку можно оформить полностью онлайн. Мы готовим все документы, организуем подписание договора и нотариальное оформление через доверенность. После сделки вы получаете нотариальный акт и становитесь собственником.
Общие расходы составляют около 5–5,5 % от стоимости объекта:
нотариальные и регистрационные таксы,
местный налог при покупке,
услуги перевода и юридическое сопровождение.
Да, в Болгарии иностранцы могут свободно приобретать квартиры, апартаменты и коммерческие помещения. Ограничений нет.
Да, многие застройщики предлагают рассрочку — от 6 месяцев до 3 лет. Условия зависят от стадии строительства и конкретного проекта.
Если объект в комплексе — взимается ежегодная такса обслуживания, которая покрывает охрану, уборку, уход за территорией и бассейном. Размер — от 8 до 15 €/м² в год.
Да. Владельцы могут сдавать апартаменты самостоятельно или через управляющую компанию. Мы помогаем подобрать надёжного партнёра и настроить процесс аренды.
Годовой налог на недвижимость в Болгарии невысокий — около 0,15 % от кадастровой стоимости, что в среднем составляет 50–150 € в год.
После оформления вы получаете нотариальный акт (свидетельство о собственности), кадастровый номер и документы, подтверждающие регистрацию в реестре недвижимости.
Да, большинство комплексов и домов в прибрежных районах предназначены для круглогодичного проживания. Есть магазины, аптеки, школы и общественный транспорт.
Для резервации достаточно оплатить депозит (обычно 2000–3000 €). После этого объект снимается с продажи и оформляется предварительный договор.
Используйте форму ниже, чтобы связаться с нами!










Горячие предложения по недвижимости!
Только актуальные объекты и ежедневные обновления в нашем Telegram-канале.
Успейте первым забронировать лучшие варианты!
Ищете идеальную недвижимость в Болгарии, но не нашли то, что нужно? Мы готовы помочь вам!
💬 Напишите нам в Telegram, и наш менеджер подберет для вас лучшие варианты