Пароль буде надіслано вам електронною поштою
Пропонується до продажу просторий апартамент з однією спальнею в сучасному житловому комплексі "Азимут", розташованому в одному з найбільш упорядкованих районів міста Бургас. Ця пропозиція поєднує комфорт міського життя, близькість до моря і надійну якість будівництва.
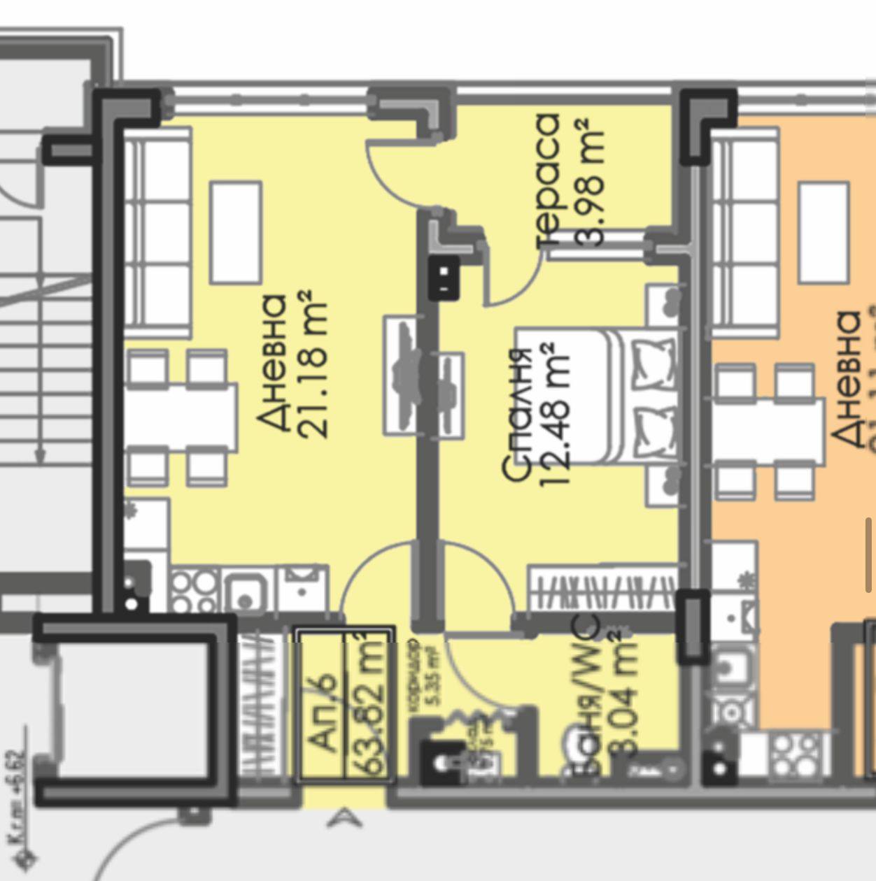
Квартира розташована в четвертому блоці комплексу, на одинадцятому поверсі будівлі. Загальна площа апартаменту становить 63 м², що дає змогу розмістити все необхідне для постійного проживання або відпочинку біля моря. З вікон відкривається приємний краєвид, а високий поверх забезпечує хороше природне освітлення і відокремленість.
⸻
Простір і сучасний комфорт
Планування апартаменту продумане до дрібниць: простора вітальня із зоною кухні, затишна спальня, ванна кімната і балкон. Простір організовано раціонально - кожна зона зручна і функціональна. Великі вікна наповнюють приміщення світлом, створюючи відчуття затишку і тепла.
Такий формат ідеально підійде як для життя в Болгарії цілий рік, так і для сезонного відпочинку. Квартира буде комфортна для пари, сім'ї або як інвестиція під здачу в оренду.
⸻
Помірна такса і якісне будівництво
Житловий комплекс "Азимут" вигідно вирізняється поєднанням високого рівня будівництва та низької вартості обслуговування. Такса становить лише 5 євро за квадратний метр на рік, що робить утримання нерухомості доступним навіть при цілорічному проживанні.
Будівля зведена із застосуванням сучасних технологій і матеріалів, що забезпечують хорошу теплоізоляцію і довговічність. Доглянута територія, акуратні загальні зони і продумана організація простору створюють комфортну атмосферу для мешканців.
⸻
Район із розвиненою інфраструктурою
Бургас - місто, яке успішно поєднує морський клімат, європейський рівень сервісу та динамічний розвиток. Район, де розташований комплекс "Азимут", вирізняє зручна транспортна доступність і близькість до всієї міської інфраструктури.
Поруч знаходяться магазини, аптеки, зупинки громадського транспорту, кафе і супермаркети. До центру Бургаса, морського парку і пляжу можна дістатися всього за кілька хвилин. Це робить квартиру привабливою не тільки для особистого проживання, а й для інвестицій - попит на оренду тут стабільно високий.
⸻
Приваблива інвестиція в майбутнє
Вартість апартаменту - 102 112 євро. Враховуючи площу 63 м², високий поверх і вдале розташування, це чудова можливість придбати сучасне житло в одному з найперспективніших міст на болгарському узбережжі.
Купівля квартири в комплексі "Азимут" - це надійне рішення для тих, хто цінує якість, комфорт і стабільність. Об'єкти в Бургасі зростають у ціні, а квартири в сучасних житлових будинках користуються постійним попитом. Такий апартамент стане вигідною інвестицією і комфортним місцем для життя біля моря.
Найкращі об'єкти йдуть за години. Підпишіться на Telegram - там з'являються пропозиції, які не потрапляють у відкритий доступ.
З Марією можна зв'язатися через телефон: +35988330839 мобільний: +380977554750 Будь ласка, використовуйте #%id, щоб ідентифікувати майно "Двокімнатна квартира з видом на море в житловому будинку - Сарафово, Бургас"
З Марією можна зв'язатися через телефон: +35988330839 мобільний: +380977554750 Будь ласка, використовуйте #%id, щоб ідентифікувати об'єкт нерухомості "Перша лінія біля моря - апартаменти з панорамним видом у Burgas Bay"
З Марією можна зв'язатися через телефон: +35988330839 мобільний: +380977554750 Будь ласка, використовуйте #%id для ідентифікації майна "Студія від забудовника в новому районі - Azimut Atlas 1, Бургас"
З Марією можна зв'язатися через телефон: +35988330839 мобільний: +380977554750 Будь ласка, використовуйте #%id, щоб ідентифікувати майно "Двокімнатна квартира в новому будинку - Бургас, квартал Хоризонт"
З Марією можна зв'язатися через телефон: +35988330839 мобільний: +380977554750 Будь ласка, використовуйте #%id для ідентифікації властивості "Трикімнатний апартамент із двома спальнями - Бургас, Panorama, район Меден рудник"
З Марією можна зв'язатися через телефон: +35988330839 мобільний: +380977554750 Будь ласка, використовуйте #%id, щоб ідентифікувати майно "Студія в новому житловому комплексі Atlas 3, Бургас"
Так, покупку можна оформити повністю онлайн. Ми готуємо всі документи, організуємо підписання договору та нотаріальне оформлення через довіреність. Після угоди ви отримуєте нотаріальний акт і стаєте власником.
Загальні витрати становлять близько 5-5,5 % від вартості об'єкта:
нотаріальні та реєстраційні такси,
місцевий податок під час купівлі,
послуги перекладу та юридичний супровід.
Так, у Болгарії іноземці можуть вільно купувати квартири, апартаменти та комерційні приміщення. Обмежень немає.
Так, багато забудовників пропонують розстрочку - від 6 місяців до 3 років. Умови залежать від стадії будівництва і конкретного проєкту.
Якщо об'єкт у комплексі - стягується щорічна такса обслуговування, яка покриває охорону, прибирання, догляд за територією і басейном. Розмір - від 8 до 15 €/м² на рік.
Так. Власники можуть здавати апартаменти самостійно або через керуючу компанію. Ми допомагаємо підібрати надійного партнера та налаштувати процес оренди.
Річний податок на нерухомість у Болгарії невисокий - річний податок. близько 0,15 % від кадастрової вартостіщо в середньому становить 50-150 € на рік.
Після оформлення ви отримуєте нотаріальний акт (свідоцтво про власність), кадастровий номер і документи, що підтверджують реєстрацію в реєстрі нерухомості.
Так, більшість комплексів і будинків у прибережних районах призначені для цілорічного проживання. Є магазини, аптеки, школи та громадський транспорт.
Для резервації достатньо оплатити депозит (зазвичай 2000-3000 €). Після цього об'єкт знімається з продажу й оформляється попередній договір.
Використовуйте форму нижче, щоб зв'язатися з нами!










Гарячі пропозиції щодо нерухомості!
Тільки актуальні об'єкти та щоденні оновлення в нашому Telegram-каналі.
Встигніть першим забронювати найкращі варіанти!